Telefon   04131 / 22 33 40

Partner-Unternehmen 2025

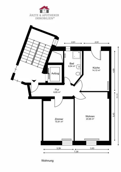
Wohnung zum Kauf 21107 Hamburg - Wilhelmsburg (Stadtteil)

Altbaucharakter trifft Moderne – helle Wohnung mit Aufzug, Balkon und Dielenboden in grüner Lage!

  • 395.000 €
  • Objekt-Nr.: 252662-9-45
  • 2 Zimmer
  • 1 Schlafzimmer
  • 1 Badezimmer
Teilen auf:

*Pflichtfelder Ihre Anfrage

Ansprechpartner

Frau Nadine Kierspel

Telefon: 00491732524607
nadine.kierspel@aerzte-apotheker-immobilien.de

Zur Objektanfrage

Neueste Immobilien

25337 Kölln-Reisiek - Kölln-Reisiek (Gemeinde)Lichtdurchflutete Pärchen- und Singlewohnung – ruhig, modern & gemütlich

  • 2
  • 1
  • 1
Wohnfl.: 72 m²

Kaltmiete
720 €

21407 Deutsch Evern - Deutsch Evern (Gemeinde)Zwei gepflegte Einfamilienhäuser auf einem Grundstück - Exklusives Wohnen in ruhiger Sackgassenlage

  • 9
  • 1
Wohnfl.: 190 m²

Kaufpreis
725.000 €

Suchauftrag

Wir unterstützen Sie persönlich und zuverlässig bei der Suche nach Ihrer Traumimmobilie.

Suchauftrag

Wir unterstützen Sie persönlich und zuverlässig bei der Suche nach Ihrer Traumimmobilie.

Exklusive Objektvideos

Emotionen sind ein sehr wichtiger Faktor um Interesse zu wecken und eine Kaufentscheidung zu treffen.

Gerne für Sie da!

Wir stehen für Ihre Fragen und Wünsche gerne zur Verfügung.
Tel.: 0 41 31 / 22 33 40