Telefon   04131 / 22 33 40

Partner-Unternehmen 2025

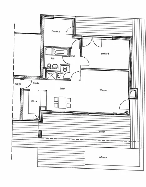
Wohnung zum Kauf 22337 Hamburg Alsterdorf / Ohlsdorf - Alsterdorf (Stadtteil)

Ruhiges Penthouse am Alsterlauf in Alsterdorf mit XXL-Dachterrasse. Barrierearm & Top Energiewerte.

  • 749.000 €
  • Objekt-Nr.: 252856-2
  • 3 Zimmer
  • 2 Schlafzimmer
  • 1 Badezimmer
Teilen auf:

*Pflichtfelder Ihre Anfrage

Ansprechpartner

Herr Pawel Jarmuszewski

Telefon: 00491737001767
p.jarmuszewski@aerzte-apotheker-immobilien.de

Zur Objektanfrage

Neueste Immobilien

25335 Elmshorn - Elmshorn (Stadt)Top Kapitalanlage! Wohn- & Geschäftshaus in gefragter Lage von Elmshorn!

  • 5
Wohnfl.: 271,31 m²

Kaufpreis
890.000 €

23942 Dassow - Dassow (Gemarkung)Reetgedeckter Küstentraum – stilvolles Ferienhaus in Ostseenähe mit Ruhegarantie!

  • 3
  • 2
  • 2
Wohnfl.: 95 m²

Kaufpreis
548.000 €

Suchauftrag

Wir unterstützen Sie persönlich und zuverlässig bei der Suche nach Ihrer Traumimmobilie.

Suchauftrag

Wir unterstützen Sie persönlich und zuverlässig bei der Suche nach Ihrer Traumimmobilie.

Exklusive Objektvideos

Emotionen sind ein sehr wichtiger Faktor um Interesse zu wecken und eine Kaufentscheidung zu treffen.

Gerne für Sie da!

Wir stehen für Ihre Fragen und Wünsche gerne zur Verfügung.
Tel.: 0 41 31 / 22 33 40