Telefon   04131 / 22 33 40

Partner-Unternehmen 2025

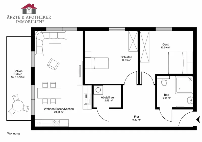
Wohnung zum Kauf 26802 Moormerland - Warsingsfehn

Moderne 3-Zimmer-Wohnung mit Balkon - Ideal für Paare, Familien oder Berufstätige

  • 299.000 €
  • Objekt-Nr.: 252480-4-6
  • 3 Zimmer
  • 2 Schlafzimmer
  • 1 Badezimmer
Teilen auf:

*Pflichtfelder Ihre Anfrage

Ansprechpartner

Frau Dagmar König

Telefon: 00491626235834
dagmar.koenig@aerzte-apotheker-immobilien.de

Zur Objektanfrage

Neueste Immobilien

23562 Lübeck - LübeckEin Bungalow - unzählige Möglichkeiten: Großzügiges Zweifamilienhaus - traumhaftes Grundstück!

  • 6
  • 4
  • 2
Wohnfl.: 181 m²

Kaufpreis
498.000 €

21706 Drochtersen - AschhornFamilienglück in Massivbauweise – Helles Einfamilienhaus mit Garten & Wohlfühlatmosphäre

  • 5
  • 3
  • 2
Wohnfl.: 128 m²

Kaufpreis
379.000 €

Suchauftrag

Wir unterstützen Sie persönlich und zuverlässig bei der Suche nach Ihrer Traumimmobilie.

Suchauftrag

Wir unterstützen Sie persönlich und zuverlässig bei der Suche nach Ihrer Traumimmobilie.

Exklusive Objektvideos

Emotionen sind ein sehr wichtiger Faktor um Interesse zu wecken und eine Kaufentscheidung zu treffen.

Gerne für Sie da!

Wir stehen für Ihre Fragen und Wünsche gerne zur Verfügung.
Tel.: 0 41 31 / 22 33 40