Telefon   04131 / 22 33 40

Partner-Unternehmen 2025

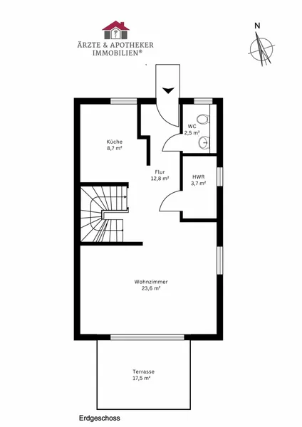
Haus zum Kauf 23566 Lübeck - Lübeck

Nachhaltig wohnen! KfW-40-Doppelhaushälfte mit Garten, PV-Anlage, Wärmepumpe & Wallbox!

  • 479.000 €
  • Objekt-Nr.: 252541-3-45
  • 5 Zimmer
  • 4 Schlafzimmer
  • 1 Badezimmer
Teilen auf:

*Pflichtfelder Ihre Anfrage

Ansprechpartner

Herr Alexander Rixen

Telefon: 00491606157683
a.rixen@aerzte-apotheker-immobilien.de

Zur Objektanfrage

Neueste Immobilien

25337 Kölln-Reisiek - Kölln-Reisiek (Gemeinde)Lichtdurchflutete Pärchen- und Singlewohnung – ruhig, modern & gemütlich

  • 2
  • 1
  • 1
Wohnfl.: 72 m²

Kaltmiete
720 €

21407 Deutsch Evern - Deutsch Evern (Gemeinde)Zwei gepflegte Einfamilienhäuser auf einem Grundstück - Exklusives Wohnen in ruhiger Sackgassenlage

  • 9
  • 1
Wohnfl.: 190 m²

Kaufpreis
725.000 €

Suchauftrag

Wir unterstützen Sie persönlich und zuverlässig bei der Suche nach Ihrer Traumimmobilie.

Suchauftrag

Wir unterstützen Sie persönlich und zuverlässig bei der Suche nach Ihrer Traumimmobilie.

Exklusive Objektvideos

Emotionen sind ein sehr wichtiger Faktor um Interesse zu wecken und eine Kaufentscheidung zu treffen.

Gerne für Sie da!

Wir stehen für Ihre Fragen und Wünsche gerne zur Verfügung.
Tel.: 0 41 31 / 22 33 40