Telefon   04131 / 22 33 40

Partner-Unternehmen 2025

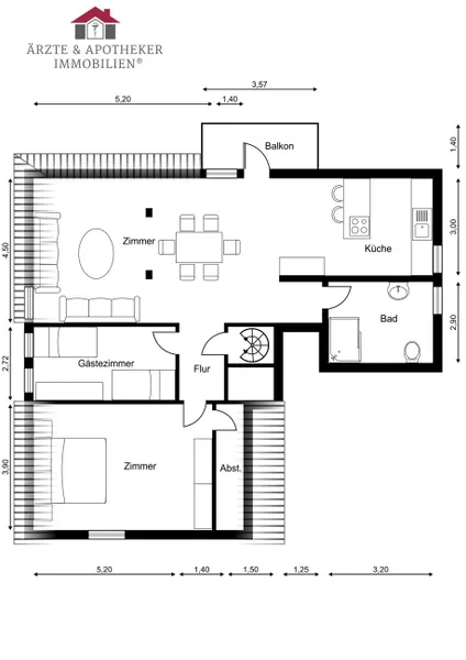
Wohnung zur Miete 23669 Timmendorfer Strand - Timmendorfer Strand

Traumlage! Wohnen wie im Urlaub direkt am Strand.

  • 1.997 €
  • Objekt-Nr.: 231523-4-6
  • 3 Zimmer
  • 2 Schlafzimmer
  • 1 Badezimmer
Teilen auf:

*Pflichtfelder Ihre Anfrage

Ansprechpartner

Frau Lisa Papenhagen

Telefon: 004917662700582
lisa.papenhagen@aerzte-apotheker-immobilien.de

Zur Objektanfrage

Neueste Immobilien

34266 Niestetal - SandershausenEin echtes Platzwunder für die ganze Familie mit Blick in's Grüne!

  • 6
  • 3
  • 1
Wohnfl.: 181,38 m²

Kaufpreis
485.000 €

24558 Henstedt-Ulzburg - Henstedt-UlzburgModernes KfW-55-Reiheneckhaus mit großem Grundstück in bester Lage

  • 5
  • 4
  • 1
Wohnfl.: 109,60 m²

Kaufpreis
449.000 €

Suchauftrag

Wir unterstützen Sie persönlich und zuverlässig bei der Suche nach Ihrer Traumimmobilie.

Suchauftrag

Wir unterstützen Sie persönlich und zuverlässig bei der Suche nach Ihrer Traumimmobilie.

Exklusive Objektvideos

Emotionen sind ein sehr wichtiger Faktor um Interesse zu wecken und eine Kaufentscheidung zu treffen.

Gerne für Sie da!

Wir stehen für Ihre Fragen und Wünsche gerne zur Verfügung.
Tel.: 0 41 31 / 22 33 40